86-021-54422420 13818829143
86-021-54422402 17701898099

E-OMEGA联轴器,奥米伽联轴器联轴器,弹性径向安装形联轴器
[迈动工业]E型联轴器好处:
分为两半的挠性零件结构易于更换,不必移动轴套连接设备聚氨基甲酸乙脂挠性零件不用润滑,有良好的抗化学腐蚀能力
抗扭柔软性靠缓冲冲击荷载和扭振保护设备
允许安装误差的能力强,由安装误差产生的反作用力小
可用目检测,检查时不必拆卸联轴器
轴套可以换用,标准联轴器和间隔联轴器的套筒相同
可调的间隔套筒,一种间隔联轴器可以适合于不同轴间间隔


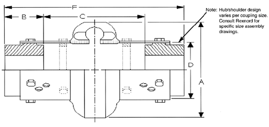
| 奥米伽联轴器型号 | 推荐的最大孔径 | 最小孔径mm | 功率额定值① | 扭矩额定值①Nm | 最大RPM | 尺寸mm | 重量③kg | |||||||
| mm | A | B | C | D | E | F | ||||||||
| 外径 | 轴套长 | 轴间距② | 最大轴套直径 | 最小轴套直径 | 全长 | |||||||||
| 内 | 外 | 内 | 外 | |||||||||||
| E2-M | 28 | 13 | 0.0023 | 21.5 | 7500 | 89 | 24 | 36 | 46 | 47 | 38 | 84 | 94 | 0.55 |
| E3-M | 34 | 13 | 0.0043 | 41.2 | 7500 | 102 | 38 | 8 | 46 | 59 | 50 | 84 | 122 | 1.1 |
| E4-M | 42 | 13 | 0.0066 | 62 | 7500 | 116 | 38 | 8 | 46 | 66 | 57 | 84 | 122 | 1.4 |
| E5-M | 48 | 13 | 0.011 | 104.5 | 7500 | 137 | 44 | 8 | 59 | 80 | 70 | 97 | 147 | 2.5 |
| E10-M | 55 | 13 | 0.011 | 163.8 | 7500 | 162 | 44 | 8 | 59 | 93 | 84 | 97 | 147 | 3.7 |
| E20-M | 60 | 21 | 0.027 | 260 | 6600 | 184 | 50 | 13 | 65 | 114 | 102 | 113 | 165 | 5.9 |
| E30-M | 75 | 21 | 0.043 | 412 | 5800 | 210 | 58 | 12 | 69 | 138 | 118 | 125 | 182 | 9.6 |
| E40-M | 85 | 26 | 0.066 | 622 | 5000 | 241 | 63 | 8 | 75 | 168 | 146 | 135 | 202 | 15.9 |
| E50-M | 90 | 26 | 0.09 | 864 | 4200 | 279 | 70 | 11 | 91 | 207 | 152 | 151 | 230 | 24.5 |
| E60-M | 105 | 31 | 0.148 | 1412 | 3800 | 318 | 82 | 8 | 97 | 222 | 165 | 173 | 262 | 32.8 |
| E70-M | 120 | 31 | 0.262 | 2486 | 3600 | 356 | 85 | 18 | 109 | 235 | 175 | 189 | 281 | 39 |
| E80-M | 155 | 31 | 0.467 | 4463 | 2000 | 406 | 114 | 17 | 149 | 286 | 240 | 245 | 377 | 77 |
| E100-M | 171 | 48 | 1 | 9605 | 1900 | 533 | 140 | 44 | 95 | 359 | 267 | 324 | 375 | 111 |
| E120-M | 190 | 48 | 2 | 19221 | 1800 | 635 | 152 | 57 | 124 | 448 | 305 | 362 | 429 | 193 |
| E140-M | 229 | 48 | 4 | 38442 | 1500 | 762 | 178 | 76 | 127 | 530 | 381 | 432 | 483 | 339 |
应用于集料、空气处理、建筑机械、食品和饮料、林业产品、材料处理、矿山、泵和压缩机、重型卡车、钢铁等行业。
[迈动工业]omega联轴器组合示图:


ES 加长形OMEGA联轴器

| 奥米伽联轴器编号① | 推荐的最大孔径 | 最小孔径 | 额定功率① | 额定扭矩② | 最大RPM③ | 尺寸mm | 重量⑥ | |||||||
| A | B | C | D | E | F | |||||||||
| (Nm) | 外径 | 轴套长 | 轴间距④ | 最大轴套直径 | 最小轴套直径 | 全长 | ||||||||
| mm | mm | 最小 | 最大 | 最小⑤ | 最大 | kg | ||||||||
| ES2-R-M | 28 | 13 | 0.0023 | 21.5 | 7500 | 89 | 24 | 91 | 100 | 47 | 38 | 146 | 149 | 1 |
| ES3-R-M | 34 | 13 | 0.0043 | 41.2 | 7500 | 102 | 38 | 85 | 140 | 59 | 50 | 184 | 216 | 1.38 |
| ES4-R-M | 42 | 13 | 0.0066 | 62 | 7500 | 116 | 38 | 85 | 140 | 66 | 57 | 184 | 216 | 2.3 |
| ES5-R-M | 48 | 13 | 0.011 | 104.5 | 7500 | 137 | 44 | 89 | 140 | 80 | 70 | 184 | 228 | 3.4 |
| ES10-R-M | 55 | 13 | 0.011 | 163.8 | 7500 | 162 | 44 | 89 | 140 | 93 | 84 | 184 | 228 | 4.7 |
| ES20 -M | 60 | 21 | 0.027 | 260 | 4800 | 184 | 50 | 67 | 180 | 114 | 102 | 238 | 280 | 7.1 |
| ES30 -M | 75 | 21 | 0.043 | 412 | 4200 | 210 | 58 | 54 | 180 | 138 | 118 | 238 | 293 | 11.4 |
| ES40-M | 85 | 26 | 0.066 | 622 | 3600 | 241 | 63 | 41 | 180 | 168 | 146 | 238 | 307 | 18.2 |
| ES50-M | 90 | 26 | 0.09 | 864 | 3100 | 279 | 70 | 28 | 180 | 207 | 152 | 238 | 319 | 27.3 |
| ES60-M | 105 | 31 | 0.148 | 1412 | 2800 | 318 | 82 | 66 | 250 | 222 | 165 | 318 | 415 | 38.2 |
| ES70-M | 120 | 31 | 0.262 | 2486 | 2600 | 356 | 85 | 59 | 250 | 235 | 175 | 318 | 421 | 46.4 |
| ES80-M | 155 | 31 | 0.467 | 4463 | 1800 | 406 | 114 | 37 | 250 | 286 | 240 | 318 | 478 | 81.8 |
尾表“R”表示环型,圆环作为ES10-R至ES10-R的标准件和ES20至ES80型的任选提供。
使用系数=1.0
高速环为ES2-R至ES10-R的标准件,ES20至ES80的任选件
装有高速环的间隔联轴器可以以标准系列联轴器的最大允许速度转运
轴与轴套面平齐的尺寸
元件的全长
最大孔轴套的重量


公司名称:上海迈动机电设备有限公司
公司地址:上海青浦工业区崧海路98号
邮政编码:201703
公司电话:021-54422420
公司传真:021-54422420-801
邮箱:shmidon@126.com
户名:上海迈动机电设备有限公司
税号:310112660703692
开户行:工行上海莘庄支行
账号:1001140209007024765
电话:021-54422420 54422402
传真:021-54422420-801
地址:上海莘庄工业园区申富路128号(开票)
地址:上海青浦工业园区崧海路98号(收货地址)
上海迈动机电设备有限公司提供17%的增值税发票;
品质100%保证,让你更放心使用。