86-021-54422420 13818829143
86-021-54422402 17701898099
All products
联轴器 Coupling
传动轮 Pulley
胀套 Lock
丝杆导轨 ScrewGuide
离合制动器 Clutch
传动器 Actuators
皮带 Belt
电机 Motor
轴承 Bearing



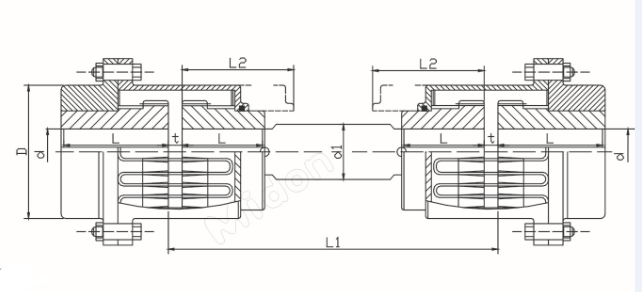
J型蛇形弹簧联轴器:是一种结构先进的金属弹性联轴器。它靠蛇形弹簧片来传递扭矩。减振性好,使用寿命长,联轴器以蛇形弹簧片轴向嵌入两半36%以上。梯形截面的蛇形弹簧片采用优质弹簧钢,经严格的热处理,并特殊加工而成,具有良好的机械性能,从而使联轴器的使用寿命远比非金属弹性元件联轴器(如弹性套 柱销,尼龙棒销联轴器)大为增长。
| 基本参数和主要尺寸(JB/T 8869-2000) | ||||||||||||||
| 型号 | 公称转矩Tn KN.m | 许用转速(n) r/min | 轴孔直径 d | 轴孔长度 L | 总长度 L0 | L2 | D | D1 | 间隙 t | 重量 kg | 润滑油 kg | 许用位移量 | ||
| 径向y | 轴向x | 角向a | ||||||||||||
| JS1 | 0.045 | 4500 | 18-22 | 47 | 97 | 66 | 95 | - | 3 | 1.91 | 0.027 | 0.15 | ±0.3 | 0.076 |
| JS2 | 0.14 | 4500 | 22-35 | 47 | 97 | 68 | 105 | - | 3 | 2.59 | 0.041 | 0.15 | ±0.3 | 0.076 |
| JS3 | 0.224 | 4500 | 25-42 | 50 | 103 | 70 | 115 | - | 3 | 3.36 | 0.054 | 0.15 | ±0.3 | 0.076 |
| JS4 | 0.4 | 4500 | 32-60 | 60 | 123 | 80 | 130 | - | 3 | 5.45 | 0.068 | 0.2 | ±0.3 | 0.1 |
| JS5 | 0.63 | 4350 | 40-56 | 63 | 129 | 92 | 150 | - | 3 | 7.26 | 0.086 | 0.2 | ±0.3 | 0.127 |
| JS6 | 0.9 | 4125 | 48-65 | 76 | 155 | 95 | 160 | - | 3 | 10.4 | 0.113 | 0.2 | ±0.3 | 0.127 |
| JS7 | 1.8 | 3600 | 55-80 | 89 | 181 | 116 | 190 | - | 3 | 17.7 | 0.172 | 0.2 | ±0.3 | 0.15 |
| JS8 | 3.15 | 3600 | 65-95 | 98 | 199 | 122 | 210 | - | 3 | 25.4 | 0.254 | 0.2 | ±0.3 | 0.18 |
| JS9 | 5.6 | 2440 | 75-110 | 120 | 245 | 155 | 250 | - | 5 | 42.2 | 0.426 | 0.25 | ±0.5 | 0.2 |
| JS10 | 8 | 2250 | 85-120 | 127 | 259 | 162 | 270 | - | 5 | 54.5 | 0.508 | 0.25 | ±0.5 | 0.23 |
| JS11 | 12.5 | 2025 | 90-140 | 149 | 304 | 192 | 310 | - | 6 | 81.3 | 0.735 | 0.28 | ±0.6 | 0.25 |
| JS12 | 18 | 1800 | 110-170 | 162 | 330 | 195 | 346 | - | 6 | 121 | 0.908 | 0.28 | ±0.6 | 0.3 |
| JS13 | 25 | 1650 | 120-200 | 184 | 374 | 201 | 384 | - | 6 | 178 | 1.135 | 0.28 | ±0.6 | 0.33 |
| JS14 | 35.5 | 1500 | 140-200 | 183 | 372 | 271 | 450 | 391 | 6 | 234 | 1.952 | 0.3 | ±0.6 | 0.4 |
| JS15 | 50 | 1350 | 160-240 | 198 | 402 | 279 | 500 | 431 | 6 | 317 | 2.815 | 0.3 | ±0.6 | 0.45 |
| JS16 | 63 | 1225 | 180-280 | 216 | 438 | 304 | 566 | 487 | 6 | 448 | 3.496 | 0.3 | ±0.6 | 0.5 |
| JS17 | 90 | 1100 | 200-300 | 239 | 484 | 322 | 630 | 555 | 6 | 620 | 3.76 | 0.38 | ±0.6 | 0.56 |
| JS18 | 125 | 1050 | 240-320 | 260 | 526 | 356 | 675 | 608 | 6 | 776 | 4.4 | 0.38 | ±0.6 | 0.6 |
| JS19 | 160 | 900 | 280-360 | 280 | 566 | 355 | 756 | 660 | 6 | 1058 | 5.63 | 0.38 | ±1.3 | 0.68 |
| JS20 | 224 | 820 | 300-380 | 305 | 623 | 432 | 845 | 751 | 13 | 1426 | 10.5 | 0.46 | ±1.3 | 0.74 |
| JS21 | 315 | 730 | 320-420 | 325 | 663 | 490 | 920 | 822 | 13 | 1787 | 16.1 | 0.46 | ±1.3 | 0.8 |
| JS22 | 400 | 680 | 340-450 | 345 | 703 | 546 | 1000 | 905 | 13 | 2269 | 24.1 | 0.48 | ±1.3 | 0.89 |
| JS23 | 500 | 630 | 360-480 | 368 | 749 | 648 | 1087 | - | 13 | 2951 | 33.8 | 0.48 | ±1.3 | 0.96 |
| JS24 | 630 | 580 | 400-460 | 401 | 815 | 698 | 1180 | - | 13 | 3836 | 50.2 | 0.5 | ±1.3 | 1.07 |
| JS25 | 800 | 540 | 420-500 | 432 | 877 | 762 | 1260 | - | 13 | 4686 | 67.2 | 0.5 | ±1.3 | 1.77 |
| 订货书写示范:JS1-YA?18*47/J1A?22*L47 关于Y,J,J1,Z型孔,A型键槽等,请见P4页 | ||||||||||||||
| 基本参数和主要尺寸(JB/T 8869-2000) | |||||||||||||
| 型号 | 公称转矩Tn KN.m | 轴孔直径 d | 中间轴d1 | 轴孔长度 L | 中间轴 C min | D | L2 | 间隙 t | 重量 kg 一端 | 润滑油 kg 一端 | 许用位移量 | ||
| 径向y | 轴向x | 角向a | |||||||||||
| JSS1 | 0.14 | 22-35 | 28 | 48 | 162 | 116 | 78 | 3 | 3.9 | 0.041 | 0.05 | ±0.3 | 0.076 |
| JSS2 | 0.4 | 32-50 | 35 | 60 | 195 | 158 | 94 | 3 | 8.9 | 0.068 | 0.05 | ±0.3 | 0.1 |
| JSS3 | 0.9 | 48-65 | 50 | 76 | 213 | 183 | 103 | 3 | 15.6 | 0.113 | 0.05 | ±0.3 | 0.127 |
| JSS4 | 1.8 | 55-80 | 63 | 89 | 275 | 218 | 134 | 3 | 26.4 | 0.172 | 0.05 | ±0.3 | 0.15 |
| JSS5 | 3.15 | 65-85 | 75 | 98 | 294 | 245 | 144 | 3 | 37.2 | 0.254 | 0.076 | ±0.3 | 0.18 |
| JSS6 | 5.6 | 75-110 | 90 | 120 | 372 | 286 | 182 | 5 | 63.1 | 0.427 | 0.076 | ±0.5 | 0.2 |
| JSS7 | 8 | 80-120 | 100 | 127 | 391 | 324 | 191 | 5 | 83.5 | 0.508 | 0.076 | ±0.5 | 0.23 |
| JSS8 | 12.5 | 90-140 | 120 | 150 | 453 | 327 | 220 | 6 | 98 | 0.735 | 0.076 | ±0.6 | 0.25 |
| JSS9 | 18 | 110-170 | 130 | 162 | 463 | 365 | 225 | 6 | 140 | 0.908 | 0.1 | ±0.6 | 0.3 |
| JSS10 | 25 | 120-200 | 140 | 184 | 482 | 419 | 235 | 6 | 210 | 1.135 | 0.1 | ±0.6 | 0.33 |
| JSS11 | 35.5 | 140-200 | 160 | 183 | 549 | 478 | 268 | 6 | 277 | 1.962 | 0.1 | ±0.6 | 0.4 |
| JSS12 | 50 | 160-240 | 200 | 198 | 587 | 548 | 287 | 6 | 381 | 2.815 | 0.127 | ±0.6 | 0.45 |
| JSS13 | 63 | 180-250 | 200 | 216 | 622 | 604 | 305 | 6 | 519 | 3.496 | 0.127 | ±0.6 | 0.5 |
| JSS14 | 90 | 200-280 | 220 | 239 | 673 | 665 | 330 | 6 | 719 | 3.768 | 0.127 | ±0.6 | 0.56 |
| JSS15 | 125 | 240-320 | 250 | 259 | 711 | 708 | 350 | 6 | 899 | 4.4 | 0.15 | ±0.6 | 0.6 |
| JSS16 | 160 | 280-360 | 280 | 289 | 744 | 782 | 366 | 6 | 1205 | 5.62 | 0.15 | ±0.6 | 0.68 |
| 订货书写示范:JSS1-YA?22*L48/JA?35*L48/+C162 关于Y,J,J1,Z型孔,A型键槽等,请见P4页 | |||||||||||||

公司名称:上海迈动机电设备有限公司
公司地址:上海青浦工业区崧海路98号
邮政编码:201703
公司电话:021-54422420
公司传真:021-54422420-801
邮箱:shmidon@126.com
户名:上海迈动机电设备有限公司
税号:310112660703692
开户行:工行上海莘庄支行
账号:1001140209007024765
电话:021-54422420 54422402
传真:021-54422420-801
地址:上海莘庄工业园区申富路128号(开票)
地址:上海青浦工业园区崧海路98号(收货地址)
上海迈动机电设备有限公司提供17%的增值税发票;
品质100%保证,让你更放心使用。
ADD:上海迈动机电设备有限公司 备案号:沪ICP备15037005
TEL:86-021-54422420,021-544227902 ,021-54422402 MB:13818829143,17701898099